Potential to increase the rental return even further – ask us how?
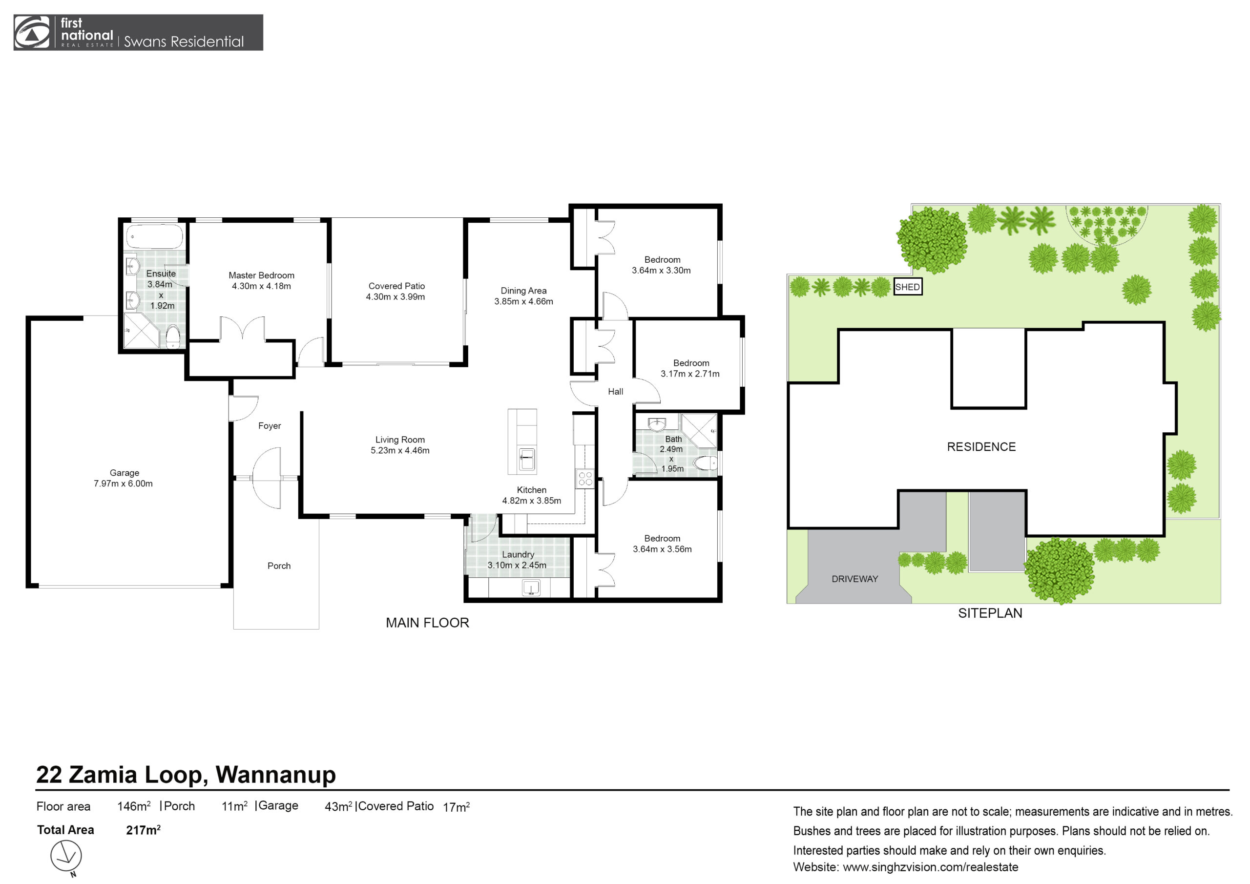
Nestled within the peaceful Sanctuary Woods Private Estate, this beautifully presented modern home offers a serene lifestyle surrounded by mature trees, abundant birdlife, and natural wildlife. Designed for comfortable living and effortless entertaining, the property features spacious interiors and a functional open-plan layout that flows seamlessly to the outdoor alfresco area.
With low-maintenance gardens and energy-efficient features, this home is perfect for families, downsizers, or anyone seeking a tranquil lifestyle while remaining close to essential amenities and the stunning coastline.
Current rental potential is estimated at $750 -$850 per week, making it an attractive opportunity for investors seeking strong rental income.
Features
• Master bedroom with a well-sized ensuite featuring his and her vanities
• Three additional generously sized bedrooms
• Spacious open-plan living and dining area
• Outdoor alfresco entertaining area, perfect for gatherings
• Low-maintenance reticulated gardens
• Solar panels to help reduce energy costs
• Split system reverse cycle air conditioning for year-round comfort
Location
• Close to Falcon Shopping Centre
• Easy access to public transport
• Nearby schools and education facilities
• Minutes to Port Bouvard Marina
• Close to a world-class golf course
• Surrounded by restaurants and cafés
• Nearby medical centre and essential services
• Only minutes from the beautiful Avalon Beach
To arrange a private inspection or for further details, contact me today.
Kajal Kamboj – 0411810169
**SCHEDULED INSPECTION TIMES ARE SUBJECT TO CHANGE WITHOUT NOTICE**
Disclaimer – Photos are for reference only. Furniture is not included. The particulars in the advertisement are not intended to form a part of the contract. Inspection is recommended, as we do not guarantee the accuracy and condition of the property as shown in the photos. This advertisement has been prepared with our best endeavors to ensure the information contained in this document is true and correct. We accept no responsibility and disclaim all liability with respect to any errors, omissions, inaccuracies, or exclusions in it. Prospective tenants must make their own inquiries to verify the information contained in this material is true
























































































